Architektura / občanské stavby

Káva pod Nitranským hradem

Objekt restaurace a dřevěné terasy nad ním vstupuje do prostoru Národní kulturní památky – Nitranského hradu – tak významným způsobem, že je nominován hned ve dvou kategoriích Ceny Slovenské komory architektů (Občanské a průmyslové budovy a Exteriér).

Tomáš Kodet , 26. 9. 2017

Peripetie a těžkosti projektu

Hradní komplex v Nitře si už dlouhá léta žádal svoji obnovu. Římskokatolické biskupství v Nitře se tedy rozhodlo vypsat vyzvanou architektonickou soutěž. Projekt koordinovalo technické oddělení biskupského úřadu a hlavní ekonom. Na realizaci se finančně podílely Norské fondy.

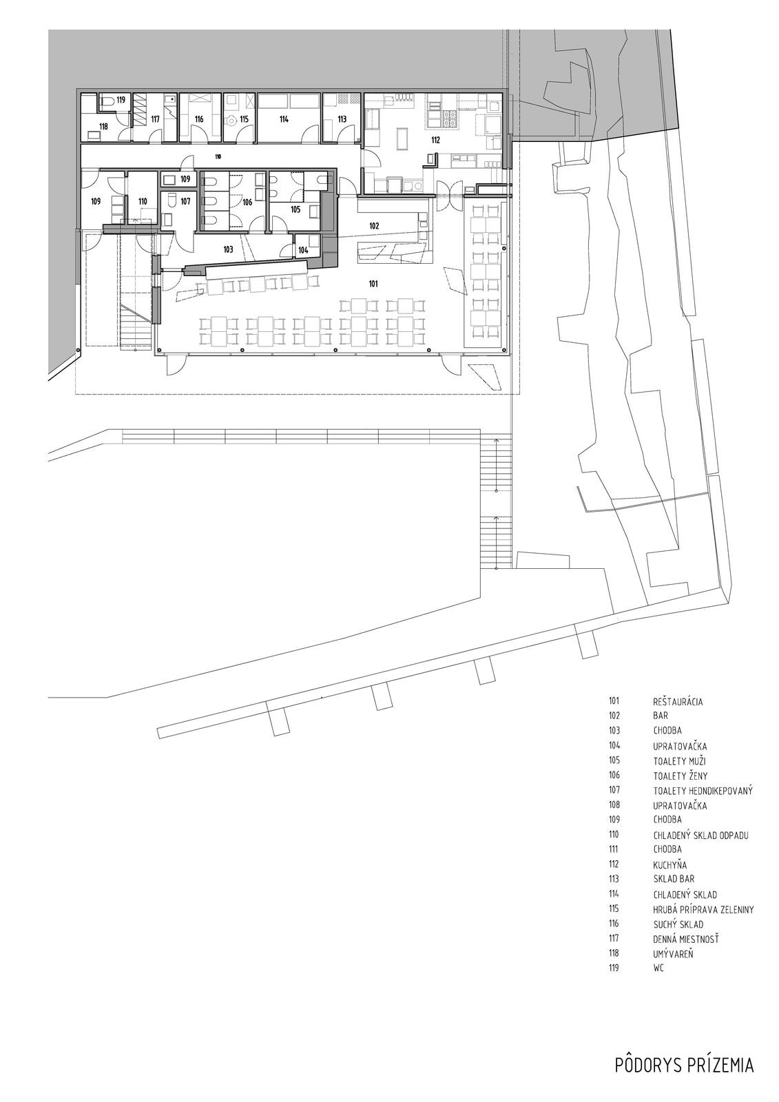
V rámci soutěže se celá oblast řešila komplexně, realizace se ale rozdělila do několika etap. Jednou z nich je Castelum Cafe, které zastává funkci restaurace, vyhlídkové terasy a toalet. Součástí projektu bylo i řešení zpřístupnění a prezentace historických hradeb nalezených při archeologickém průzkumu pod budoucím objektem, oprava spodní části hradby, obnova zeleně, návrh pěších tras na východním svahu hradního kopce a úprava prostoru bývalého parkoviště před vstupní branou.

Řešení z per architektů XXX není standartním přístupem k památkově cennému prostoru. Architekti nenapodobují historické objekty, nenavrhli objekt ze zrcadel, ve kterých by se odrážela historická budova a ani nepřešli do extrému sebevědomě arogantní stavby, která by se snažila hradu konkurovat. Podařilo se jim najít dialog. Historické architektuře ta nová nepřekáží, a přestože je kontextuální a pokorná, neskrývá se.

Tvůrci však připouštějí, je přípravy projektu byly velice náročné. Místo je dobře pozorovatelné, diskuze byly těžké a muselo se přistoupit i k několika kompromisům. Ty přicházely především z památkové péče. Architekti se jejím požadavkům snažili vyhovět, zároveň ale nechtěli narušit celistvost a myšlenku původního konceptu. Na rozdíl od debaty s investorem, kde panovala shoda, bylo jednání s památkáři velice obtížné.

Architektonické řešení

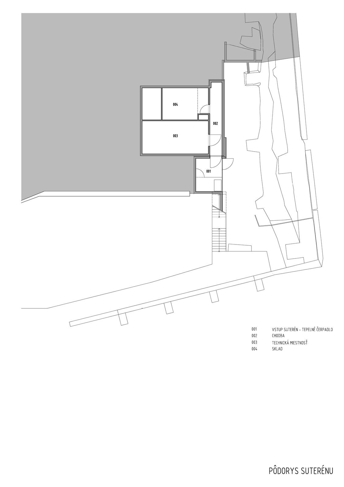
Objekt restaurace je zapuštěn do východního svahu kopce, viditelnou se tak stává pouze transparentní fasáda restaurace a střešní terasa. Ta rozšiřuje dlážděný prostor před vstupem do hradu. Její posunutí směrem ze svahu umožnilo sledovat nejen střechy slovenské Nitry, ale obdivovat i nevšední výhled na samotný hrad.

O patro níž, ke vchodu do restaurace, se návštěvník dostane betonovými schody. Prosklená fasáda nijak nebrání výhledu na město z interiéru. Nosné konstrukce monolitických stěn a stropu jsou přiznané. Střešní část přesahuje a pomáhá interiér zastínit, zároveň však zprostředkovává krytý prostor pro venkovní sezení. Zajímavé je propojení interiéru restaurace se střešní terasou. Ve dne pouštějí světlíky z laviček světlo dovnitř, v noci proudí nahoru a dřevěná terasa je jimi přisvětlovaná.

Na těžké zadání v náročném prostředí se tři tvůrci snažili najít odpověď v jednoduchém a srozumitelném jazyce. Dnes se ukazuje, že mu lidé rozumí, do Castelum Cafe a přilehlého parku nechodí jen turisté, ale i místní se sem pravidelně vrací.

  • Autoři: Martin Dulík, Marek Šumichrast, Lívia Dulíková
  • Země: Slovensko
  • Město: Nitra
  • Ulice, číslo: Námestie Jána Pavla II. 10,
  • Datum projektu: 2015
  • Realizace: 2017
  • Užitná plocha: 266.00m<sup>2</sup>
  • Zastavěná plocha: 256.00m<sup>2</sup>
  • Plocha pozemku: 4 816.00m<sup>2</sup>
  • Materiál: beton
  • autor: Tomáš Kodet *
  • publikováno: * 26. 9. 2017
  • zdroj: * Slovrnská Cena za architekturu - CEZAAR 2017

Mohlo by vás zajímat

Generální partner
Hlavní partneři