
Pomocí prosklené stěny propojil Radek Hadrbolec dům s ovocným sadem
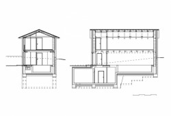
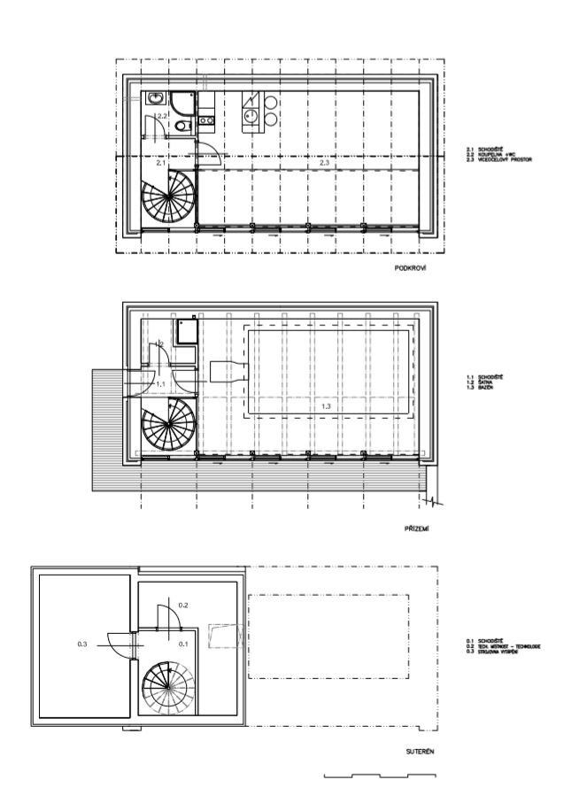
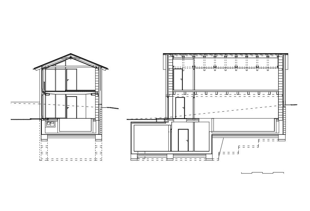
Stávající zemědělskou usedlost ve středočeské obci Hradečno doplnil architekt Radek Hadrbolec o nový rekreační objekt. Hlavní myšlenkou návrhu bylo otevřít dům okolnímu ovocnému sadu a maximálně propojit interiér s exteriérem. Novostavba svou formou i materiálovým pojetím vychází z tradičních venkovských staveb – kamenný kvádr s prosklenou jihozápadní stěnou zakončuje sedlová střecha, na charakteru interiéru se pak výrazně podepisuje odhalená dřevěná konstrukce.
Radek Hadrbolec , 10. 1. 2019
- Autoři: Radek Hadrbolec
- Země: Česká republika
- Město: Hradečno