
Stavba z lodních kontejnerů iniciuje obnovu krajiny zdecimované intenzivním zemědělstvím
V jednom španělském městečku najdeme pestrobarevnou budovu sloužící jako centrum pro výcvik psů. Díky zaměření architektů se však stavba může pochlubit značným environmentálním přesahem – a to hned v několika rovinách.
EARCH.CZ , 5. 8. 2022
Agility centrum s vyšší ambicí
Škola Educan vznikla několik desítek kilometrů za Madridem jako středisko pro výcvik psů. Její celkový záběr je ale překvapivě širší. Centrum pro cvičení agility, tedy hbitosti psů, se vyvinulo až v ekologicky-aktivistickou architekturu, která se snaží demonstrovat nové možnosti. Stavba z lodních kontejnerů totiž podporuje rehabilitaci místního ekosystému narušeného nešetrným zemědělstvím.
Za návrhem školy Educan stojí španělští architekti Enrique Espinosa a Lys Villalba, kteří se tématu ekologie a využívání průmyslových materiálů v současné architektuře věnují dlouhodobě. Svými projekty se snaží upozorňovat na problémy, které přináší překotně rostoucí města a zemědělství nadměrně využívající pesticidy. V případě školy Educan na okraji malého města Brunete, převážilo téma druhé. Architekti se totiž zavázali, že výstavbou nového výcvikového centra pro psi pomohou i jiným druhům živočichů.
„Eva, Carlos, dva belgičtí ovčáci Bicho a Bomba, sova Harris, pět rodin střízlíků, šest rodin poštolek a dvacet vrabců. Ti všichni se společně v této budově vzdálené třicet kilometrů od Madridu učí a žijí,“ říkají architekti o škole Educan, které ostatně přezdívají „škola pro psy, lidi a další druhy“.
Více k tématu
Skládačka z lodních kontejnerů
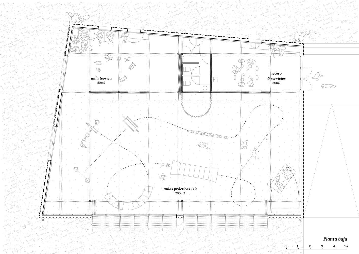
Stavba je po konstrukční stránce velkou skládačkou z použitých lodních kontejnerů a panelů z litého betonu. Různé materiály vzájemně spojuje stejný rastr, beton se totiž odléval do kovových odřezků, které při stavbě vznikly. Uvnitř se nachází velký prostor pro výcvik psů, který je možné rozdělit na dvě menší místnosti. Součástí je také přednáškový sál a další zázemí.
Sami architekti říkají, že školu nenavrhovali primárně na míru lidem. Vše je tedy přizpůsobeno tak, aby se zde dobře trénovalo a pobývalo právě psům. Místo tvrdé podlahy je na zemi speciální měkký koberec, který se při kontaktu s psími tlapkami chová jako tráva. Otevřené a dobře větrané místnosti stíní převislé rolety, pod nimiž psi snadno vyběhnou ven k velkým žlabům s dešťovou vodou. „Okenní otvory jsou vyvýšené, aby se psi nemohli vzdálit nebo se zbytečně nerozptylovali. Žaluzie zase fungují tak, aby psům, kteří pod nimi prochází, zprostředkovávaly dostatek stínu,“ dodávají Enrique Espinosa a Lys Villalba. Proti ozvěně a dozvuku jsou na kovových stěnách nainstalované protihlukové panely.
Stavba slouží i různým druhům ptáků. Ti hnízdí v části horní nástavby, malými otvory se totiž dostanou přímo dovnitř ní. Na předsazených písmenech EDUCAN se zase příležitostně zdržují netopýři – smyčka ekosystému se uzavírá, malí dravci loví hlodavce, netopýři zase redukují hmyz.

Ekonomičnost, recyklace, atraktivita
Stavba měla být vlastně takovým manifestem nové ekologické architektury v zemědělské krajině. Vedle stavební a ekonomické nenáročnosti splnila i kritérium na zužitkování již použitého materiálu – tím zde byly právě lodní kontejnery. Stavba je však zároveň vizuálně atraktivní. Kovové stěny, odhalenou konstrukci a vzduchotechniku pokryly výrazné barevné nátěry. Výsledek tak přeci jen přináší i něco, co ocení především lidé.
- Autoři: Lys Villalba
- Ateliér: Eeestudio
- Země: Španělsko
- Město: Brunete
- Realizace: 2020