Dům ve švýcarském satelitu se uzavírá před okolím do vlastního světa
Vila u Curyšského jezera ve Švýcarsku se před chaotickým okolím uzavírá sama do sebe. Nachází se totiž v zástavbě unifikovaných rodinných domů, které nenabízí žádnou kvalitu. Stavbě vládne hrubý beton a velké prosklené plochy, interiér nabízí velmi zajímavé prostory s vestaveným studiem.
EARCH.CZ , 11. 1. 2018
Navrhování domů do nesourodého prostředí suburbií, kde převládají unifikované nové stavby, považují často architekti do těžký úkol. Obtížně se totiž definuje, na co by měl dům reagovat, když jeho okolí postrádá jakoukoli kvalitu. Stejně jako v několika případech rodinných domů v České republice se i architekti ze švýcarského studia E2A nakonec rozhodli dům se zahradou uzavřít do jednoho kompaktního celku, který se ješitně soustředí pouze sám na sebe – napojením na okolí by totiž nic navíc nezískal.
Bující výstavbu nových rodinných domů u Curyšského jezera architekti zmiňují jako rozhodující faktor výsledné podoby návrhu. Podle nich totiž stavby zbavují místo jeho charakteru a vytváří monotónní zástavbu. Jakýkoli prostor mezi jednotlivými domy pak zabírají soukromé zahrady, což v očích architektů nakonec dělá z pouhé prázdné plochy louky vizuálně nejatraktivnější místo okolí.
Ateliér E2A se tak rozhodl pro jiný přístup k návrhu domu nedaleko Curychu. Na rozdíl od okolních staveb totiž dům vytváří místo s jasně definovanými hranicemi, které vytvářejí zdi a živý plot.
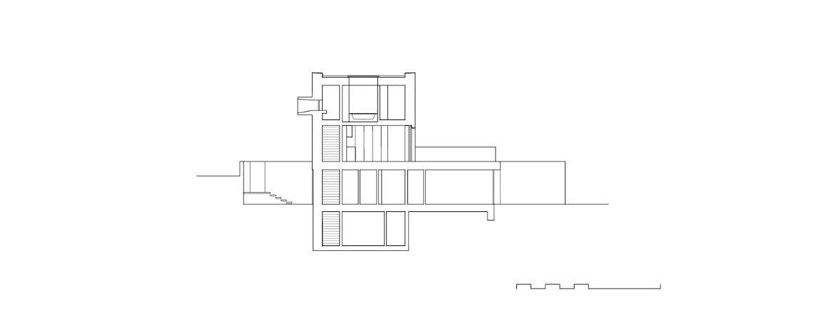
Malým odsunutím samotné stavby od hrany pozemku u hlavní komunikace pak vznikly dvě různé zahrady: nádvoří u hlavního vstupu a velká zahrada za domem. Mezi nimi se pak v přízemí nachází ložnice s přímým vstupem do zahrady.
Z něj pak vede schodiště do patra, kde centrální pozici prostoru zabírá kuchyň, na kterou z jedné strany navazuje jídelna, z druhé pak ateliérový obývák převýšení do druhého patra. Ze všech místností vede vstup na terasu propojenou schodištěm se zahradou. Z terasy se otevírají výhledy na vzdálené jezero a hory. Nad částí patra se pak nachází studio propojené otevřenou galerií se spodním obývacím pokojem.
Dům zvenčí definuje pouze hrubý beton s přiznaným otiskem dřevěného bednění a velké prosklené plochy. Kompaktní hmotu domu narušuje pouze okno na severní fasádě s masivním betonovým rámem. Při pohledu zvenčí nelze určit měřítko stavby – nic nenapovídá o jeho vnitřním dělením, počtu podlaží nebo místností. Pouze tento malý vetřelec v podobě výrazného okna.
- Ateliér: E2A
- Autoři: Piet Eckert, Wim Eckert
- Země: Švýcarsko
- Město: Stäfa
- Datum projektu: 2012
- Realizace: 2014



