 
					
                    				
					
                                                    Architektura
                                                /
                                                    rodinné domy
                                            
					
			Půvab střešovického funkcionalismu
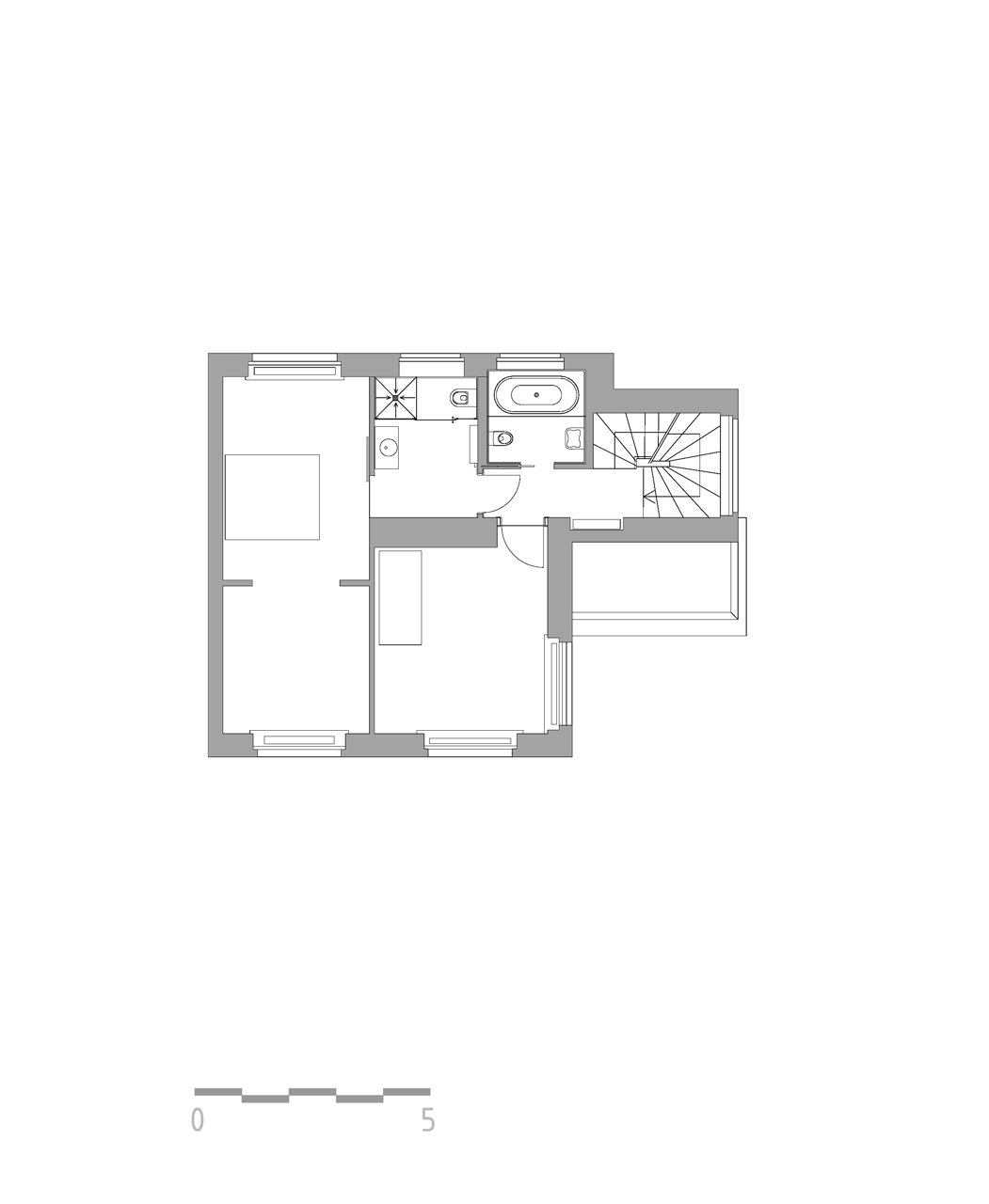
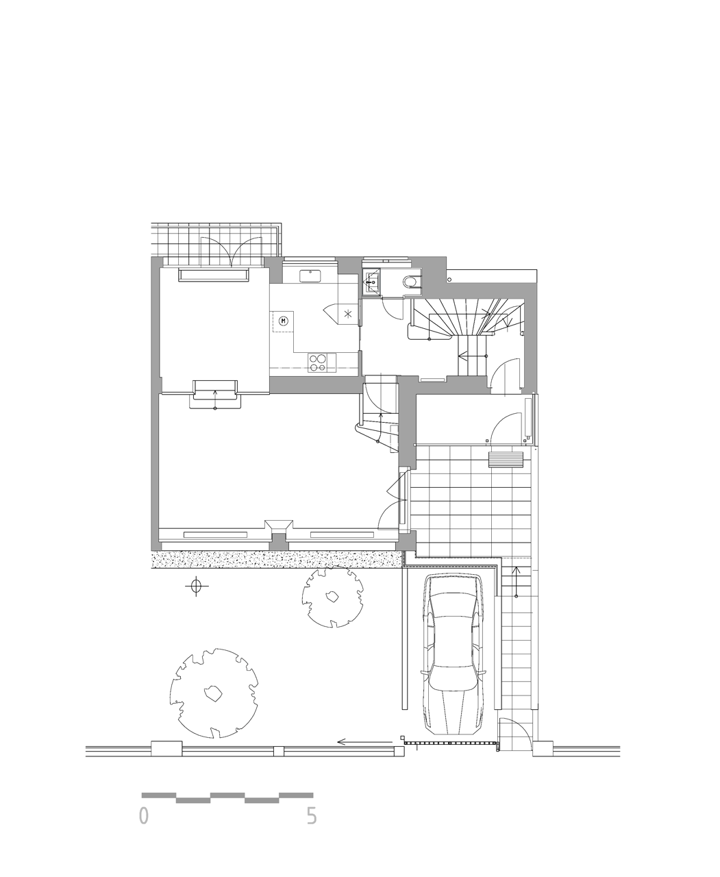
Na hranici Pražské památkové péče najdeme ulici Na Dračkách a v ní prvorepublikový dvojdům. Jedna jeho polovina prošla před pár lety navenek nepříliš nápadnou rekonstrukcí, která spolu s výraznými zásahy v interiéru, atraktivní lokalitou a vlastním pozemkem nabízí mimořádný mix, určený pro náročné bydlení.
Studio acht , 16. 8. 2016
- Autoři: Lina Procházková, Majda Šnajdrová
- Ateliér: Studio acht
- Spolupráce: Eva Teplická
- Země: Česká republika
- Město: Praha 6 - Střešovice
- Ulice, číslo: Na Dračkách
- PSČ: 162 00
- Datum projektu: 2010
- Realizace: 2012
- Užitná plocha: 267.00m2
- Zastavěná plocha: 93.20m2
- Plocha pozemku: 568.00m2
- Foto ©: Alex Timpau
 
                             
                             
                             
                             
                             
                                 
            
         
            
         
            
         
            
         
            
         
            
         
            
         
            
         
            
         
            
         
                             
                             
                             
                             
                             
                             
                             
                             
                             
                             
                             
                             
    
	 
            		 
            		 
            		 
            		 
            		 
            		 
            		 
            		 
                     
                     
                     
            		 
            		 
            		 
            		 
            		 
                     
					 
                                                                                                             
                                                         
                                                         
                                                                                                             
                                                         
                                                         
				 
				 
				 
				 
				 
				 
				 
				 
				 
				 
				 
				 
				 
				 
				 
				 
				