
Vábení
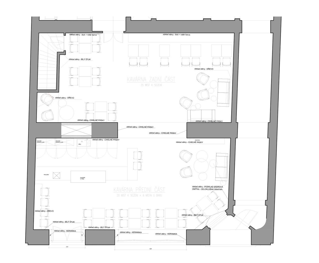
Za velkými skly v parteru plzeňského činžovního domu na Riegrově ulici se nad hrnkem kávy ve světle laděném interiéru řeší ty nejbanálnější i nejzásadnější otázky, jak to už v takových podnicích chodí. Shrnovací okna zabezpečují v letních měsících dokonalé propojení interiéru s ulicí. Když se vůně kávy přes zavřená okna ven nedostane, kavárna poutá pozornost kolemjdoucích černobílým dekorativním obkladem na vnitřním ostění oken.
DMAE Architects , 28. 12. 2016
- Autoři: Alžběta Vrabcová
- Ateliér: DMAE Architects
- Spolupráce: Jan Pavel Vlček
- Země: Česká republika
- Město: Plzeň - Vnitřní Město
- Ulice, číslo: Riegrova 224/18
- PSČ: 301 00
- Datum projektu: 2016
- Realizace: 2016
- Užitná plocha: 210.00m2
- Foto ©: Jan Vrabec