1/22
Spray architecture, Un Dernier voyage – foto
Foto: Jelena Stajic
2/22
Spray architecture, Un Dernier voyage – foto
Foto: Jelena Stajic
3/22
Spray architecture, Un Dernier voyage – foto
Foto: Jelena Stajic
4/22
Spray architecture, Un Dernier voyage – foto
Foto: Jelena Stajic
5/22
Spray architecture, Un Dernier voyage – foto
Foto: Jelena Stajic
6/22
Spray architecture, Un Dernier voyage – foto
Foto: Jelena Stajic
7/22
Spray architecture, Un Dernier voyage – foto
Foto: Jelena Stajic
8/22
Spray architecture, Un Dernier voyage – foto
Foto: Jelena Stajic
9/22
Spray architecture, Un Dernier voyage – foto
Foto: Jelena Stajic
10/22
Spray architecture, Un Dernier voyage – foto
Foto: Jelena Stajic
11/22
Spray architecture, Un Dernier voyage – foto
Foto: Jelena Stajic
12/22
Spray architecture, Un Dernier voyage – foto
Foto: Jelena Stajic
13/22
Spray architecture, Un Dernier voyage – foto
Foto: Thibaut Rassat
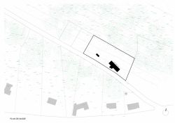
14/22
Spray architecture, Un Dernier voyage, situace – foto
Foto: archiv autorů
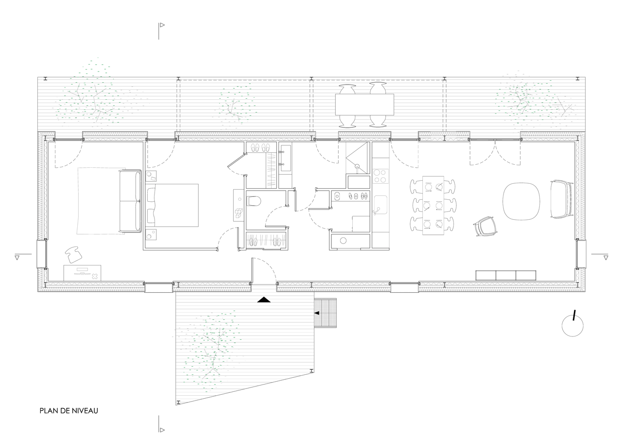
15/22
Spray architecture, Un Dernier voyage, půdorys 1. NP – foto
Foto: archiv autorů
16/22
Spray architecture, Un Dernier voyage, konstrukční schéma – foto
Foto: archiv autorů
17/22
Spray architecture, Un Dernier voyage, řez podélný – foto
Foto: archiv autorů
18/22
Spray architecture, Un Dernier voyage, řez příčný – foto
Foto: archiv autorů
19/22
Spray architecture, Un Dernier voyage, pohled – foto
Foto: archiv autorů
20/22
Spray architecture, Un Dernier voyage, pohledy – foto
Foto: archiv autorů
21/22
Spray architecture, Un Dernier voyage, pohled – foto
Foto: archiv autorů
22/22