Architektura / rodinné domy

Proměna chalupy s chlévem a stodolou

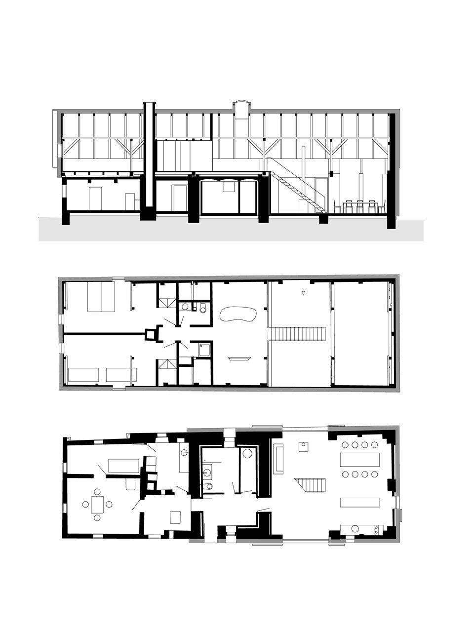
Chalupa stará asi 170 let stojí v malé zemědělské obci na jihu Čech. Cílem rekonstrukce bylo renovovat její obytnou část a rozšířit ji o prostor bývalého chléva, stodoly a půdy, při zachování jejich hospodářského charakteru i celkově malebného rázu původního stavení.

OVA , 2. 8. 2016

  • Autoři: Jiří Opočenský, Štěpán Valouch
  • Ateliér: OVA
  • Země: Česká republika
  • Realizace: 2008
  • Město: Tupadly
  • Realizace: 2008
  • Užitná plocha: 336.00m2
  • Zastavěná plocha: 245.00m2
  • Plocha pozemku: 1 241.00m2
  • Poznámka: Foto © Tomáš Souček
  • autor: OVA *
  • publikováno: * 2. 8. 2016
  • zdroj: * Autorská zpráva

Mohlo by vás zajímat

Generální partner
Hlavní partneři