KOMA MODULAR dokončila prototyp administrativní budovy z vlastních modulů řady Fashion Line
V pražské Kutnohorské ulici vyrostla nová dvoupodlažní modulární budova – sídlo společnosti KOMA Rent, která se coby dceřiná firma vizovické společnosti KOMA Modular zabývá pronájmem jednotlivých modulů i modulárních sestav. Budova vznikla sestavou modulů řady Fashion Line, kterou KOMA uvedla na trh na konci roku 2020.
EARCH.CZ , 28. 7. 2021
Modulární řada Fashion Line
Vývoj designové modulární řady Fashion Line trval přibližně dva roky. V loňském roce představila KOMA na pražském Designbloku řadu Relax, která primárně slouží k rekreaci a trávení volného času. Sídlo KOMA Rent představuje prototyp řady Office, objektů určených pro podnikání, které je možné nakonfigurovat přesně podle představ klienta. Prefabrikovaný dílcový systém tak prakticky funguje jako lego pro dospělé. V plánu je ještě řada Studio, která by měla ideálně splňovat požadavky pro zázemí kaváren či barů, ale i obchodů a služeb.
Dvoupodlažní sestava
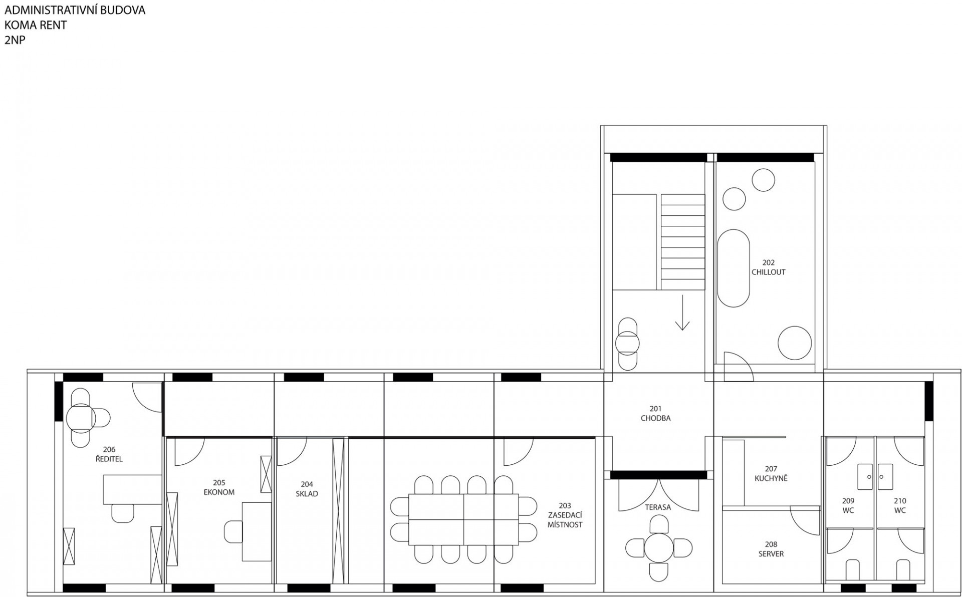
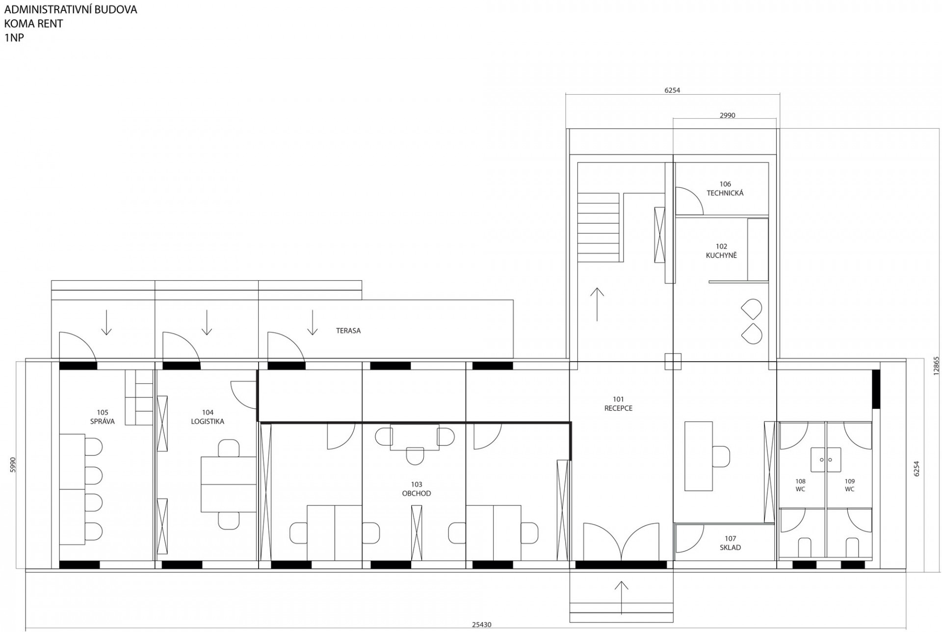
Nové sídlo KOMA Rent vzniklo z 20 modulů o celkové ploše 351 m2. Stejně jako vývoj základního designového modulu řady Fashion Line i zde vznikala výsledná podoba domu ve spolupráci s designérkou Adélou Bačovou. “Vzhled exteriérových i interiérových prvků Fashion Line Office jsem navrhovala tak, aby vznikl nejen příjemný, ale hlavně funkční prostor, který bude splňovat všechny nároky jeho zaměstnanců. Budova je tvořena tak, aby každá kancelář byla prosvětlena ze dvou stran a působila vzdušným dojmem. Vlnitý perforovaný plech na fasádě nebrání pronikání světla, zároveň však přináší do interiéru příjemnou intimitu," shrnuje princip návrhu designérka.

Ve dvou podlažích budovy s bezbariérovým přístupem najdeme kanceláře včetně konferenční a zasedací místnosti a navíc i chill-out prostor pro odpočinek. K relaxaci slouží i menší terasa umístěná v horním patře, kam se dostaneme po vnitřním schodišti o šířce jednoho modulu.
Moderní kancelářské prostředí
V interiérech budovy převládají plochy industriálního dekoru betonu a kovu doplněné o obklad z masivního dřeva, který naopak dodává prostorům hřejivost a útulnost. Prosklené vnitřní příčky podporují vzdušnost interiéru. Dobrým světelným podmínkám vnitřních prostor napomáhají i velká okna v masivních černých rámech se sníženým parapetem. Vnější vzhled budovy odpovídá tvarosloví řady Fashion Line s typickými zaoblenými liniemi. Fasádu tvoří zvlněný děrovaný plech. Odkaz na prvky industriální architektury tak nalezneme uvnitř i vně domu.

