
Kultura v měděné skříňce
Při zapojení Bastie do rozsáhlého programu obnovy městských sídlišť na jihu města je nezbytné, aby obec poskytovala fórum pro diskusi o společenských a kulturních událostech – architekti ze studia DDA Architectes proto navrhli „inovativní a kreativní místo, místo kontrastů, stínů a světel“.
DDA Architectes , 4. 10. 2016
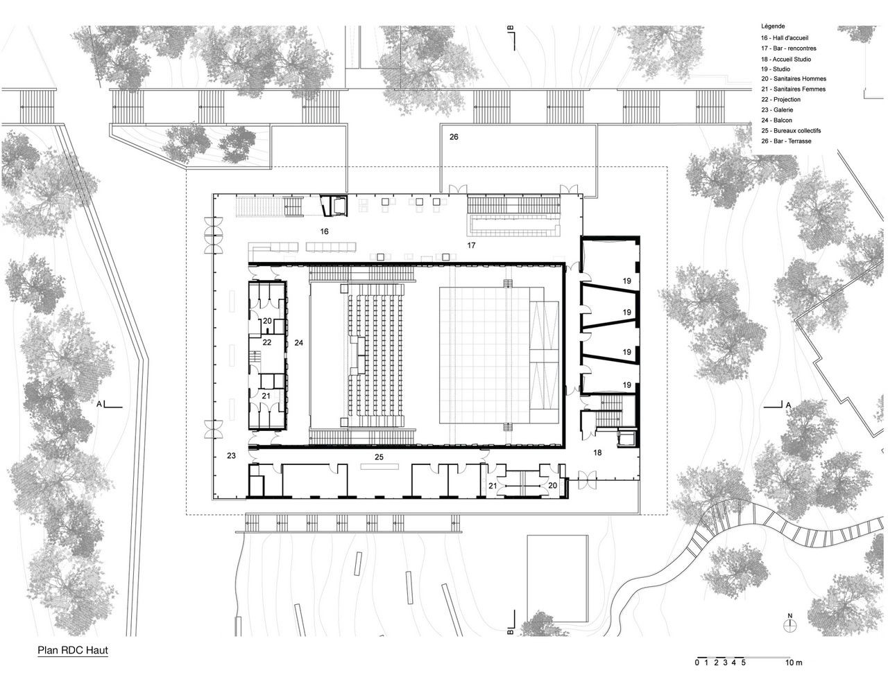
Kulturní centrum, otevřené na jihu Bastie na podzim roku 2015, nabízí multimediální knihovnu a hlediště, navzájem propojené plně průhlednou skleněnou halou.
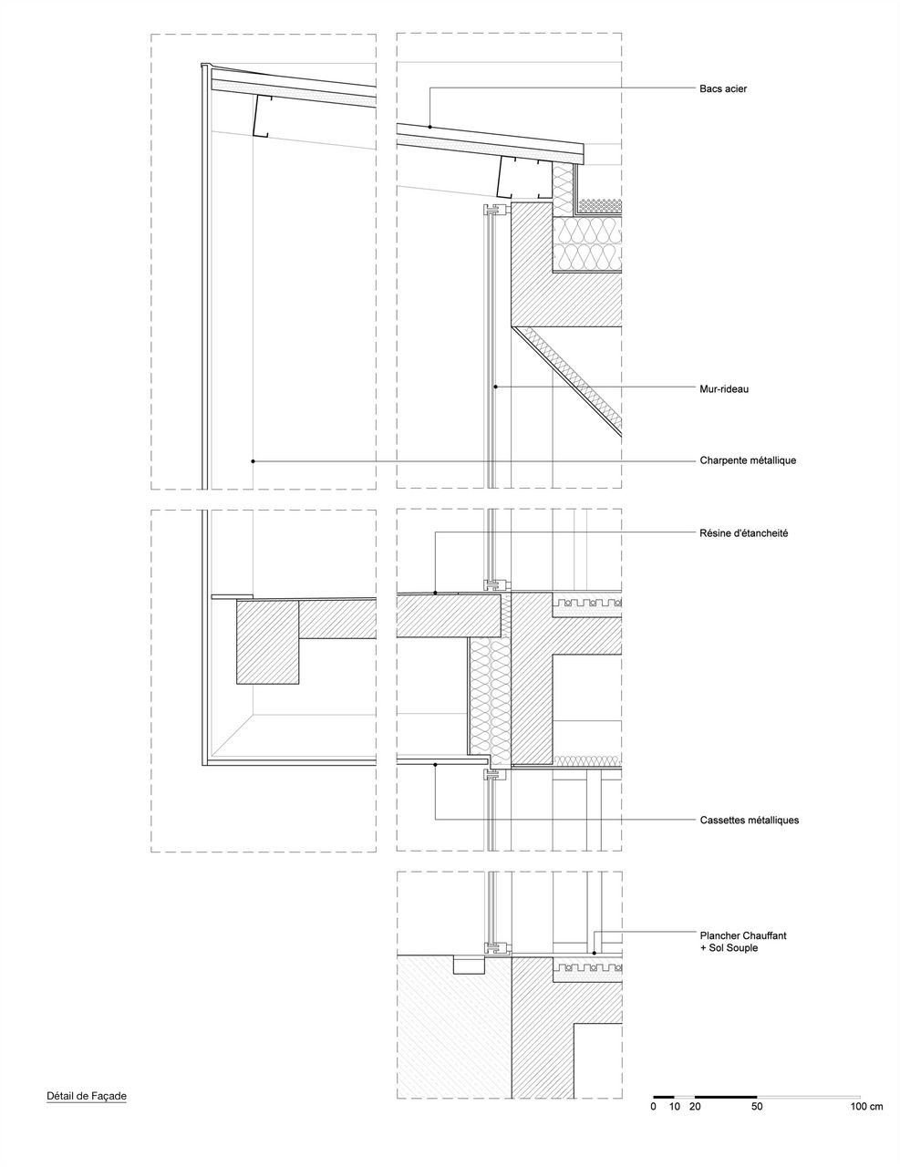
Budova je pokryta fasádou z perforované zlaté měděné slitiny (měď-hliník), která obdařila kulturní centrum bronzovou kůží. Perforovaná fasáda nabízí výhledy do zahrady, na město, na moře a do chráněných, klidných a jasných prostor knihovny. Tato druhá kůže také poskytuje důmyslný přirozený ventilační systém.
Skutečně ekologická slitina mědi fasády byla vybrána pro svou barvu, která bude postupně ztrácet svůj vysoký lesk a získání teple matný zlatý povrch, poskytující centru název „oru“ – tj. zlato v korsičtině. Řešení se slitinou mědi nabízí další výhodu v tom, že nevyžaduje žádnou údržbu a nekoroduje, ani když se nachází v mořském prostředí. Budova splňuje i požadavky francouzského programu „stavby s nízkou spotřebou“.
Více k tématu
- Ateliér: DDA Architectes
- Země: Francie
- Město: Bastia
- Ulice, číslo: 13 rue Saint-Exupéry
- PSČ: 20200
- Realizace: 2015
- Poznámka: Foto © J. Bracco & C. Septet