Nové křídlo Karvinské hornické nemocnice vznikne z modulů společnosti KOMA

V létě letošního roku by měly začít práce na přístavbě nového křídla Karvinské hornické nemocnice. Investor se rozhodl pro modulární podobu budovy především z důvodů rychlosti a jednoduchosti výstavby.
Karolína Řeháčková , 4. 6. 2020
Historie nemocnice sahá do 50. let minulého století. Od té doby do současnosti prošla modernizací všechna oddělení včetně operačních sálů a vstupní haly. S rostoucími požadavky na vznik nových specializovaných oddělení i navýšení počtu ambulancí a lůžek se areál nemocnice průběžně rozšiřoval o další budovy. Každé takové stavební úpravy většího či menšího rozsahu přinesly řadu omezení ať s ohledem na staveništní hluk, prašnost apod., tak s ohledem na provoz jako takový, kdy výstavba představovala významná omezení pro personál i samotné pacienty.
Rychle, jednoduše, modulárně
V loňském roce vznikl požadavek na rozšíření oddělení ortopedie. Zohlednění všech faktorů klasické výstavby především s ohledem na časovou náročnost vedlo majitele nemocnice k úvaze o vhodném alternativním přístupu. „Padlo rychlé rozhodnutí o nutnosti přístavby a také realizace musela být stejně rychlá. Z médií jsem věděl, že existují modulární systémy pro výstavbu a začal jsem své úvahy směrovat touto cestou," vysvětluje majitel nemocnice Milan Canibal.
„Když mi začátkem ledna letošního roku zavolal majitel nemocnice s tím, že chce letos přistavět a otevřít další křídlo nemocnice, a ptal se mne na možnost dostavby modulárním systémem a mé zkušenosti nebo povědomí o firmě KOMA MODULAR, moje stanovisko bylo kladné a doporučující," uvádí začátek celého příběhu autor projektu přístavby Jan Beneš z petit atelier.
„Na konci ledna jsme již s investorem ladili návrh dispozice, řešili přeložky sítí v areálu, napojení na technologie a další specifika projektu. Zatím vše nasvědčuje tomu, že termín zahájení stavby v 08/2020 je reálný. Tedy pokud se skupina ČEZ, která řeší nezbytnou přeložku vedení na pozemku stavebníka, začne chovat podle svého aktuálního reklamního sloganu ‚spolu to zvládneme‘," pokračuje Beneš.
Více k tématu

Architektonické a dispoziční řešení
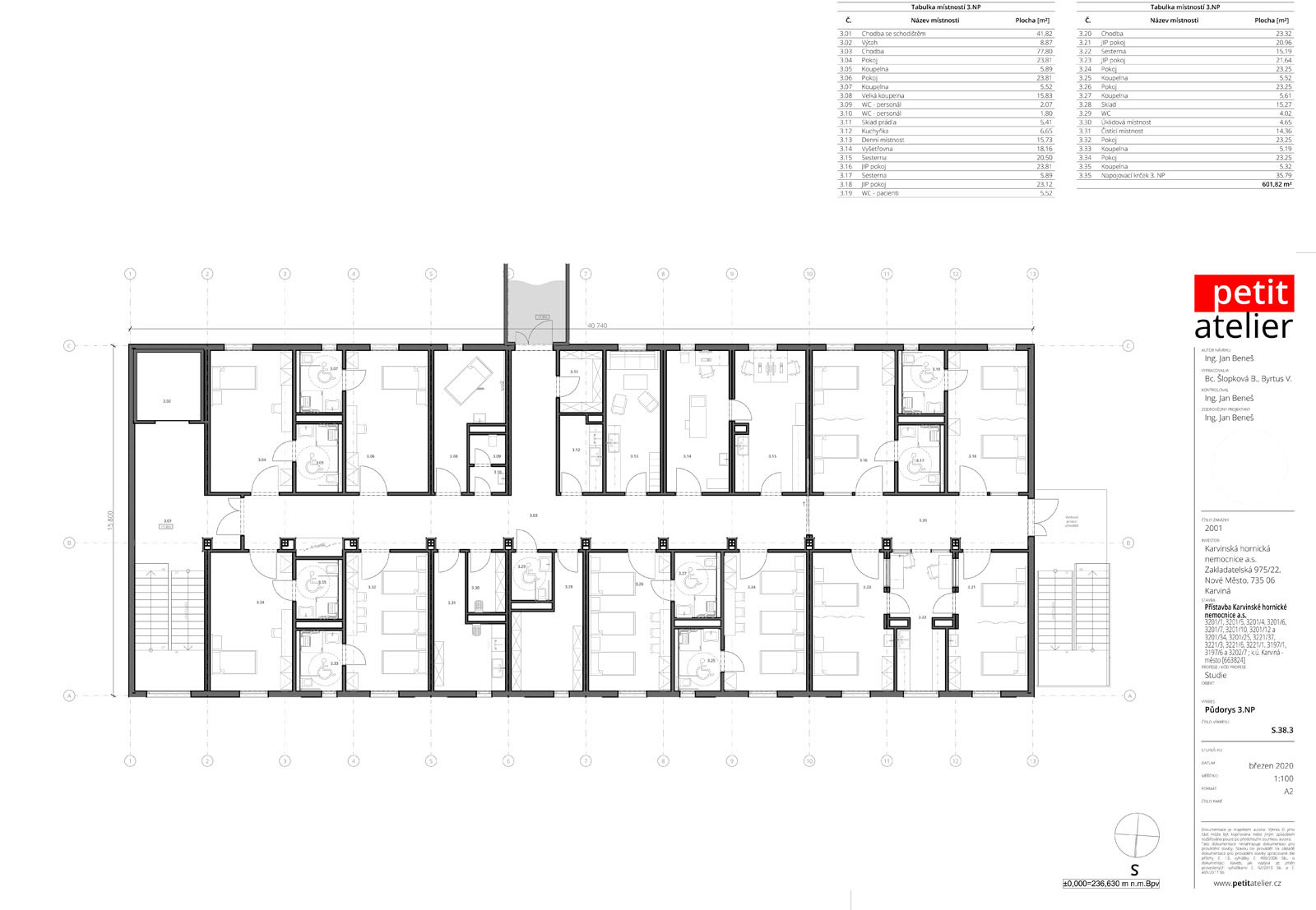
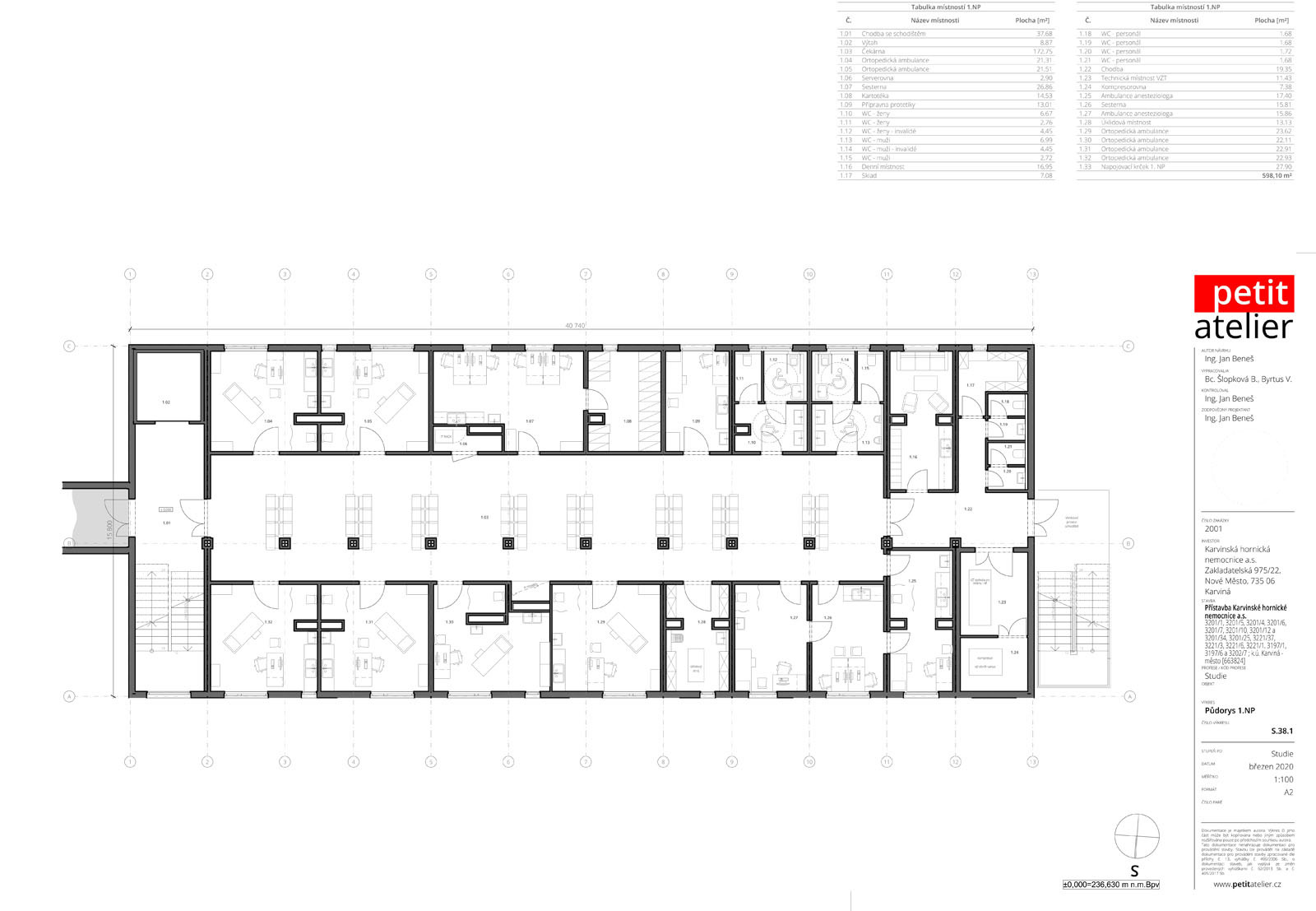
Zadáním investora bylo k stávajícím budovám nemocnice navrhnout nový blok ortopedie, který by zahrnoval jak lůžkovou část včetně pokojů JIP, tak ordinace lékařů. Přístavbu tvoří třípodlažní budova propojená se stávajícím objektem nemocnice na úrovni přízemí i třetího nadzemního podlaží. V rámci hledání optimální dispozice nakonec autoři použili dva délkové moduly o dvou různých šířkách modulů, celkem tedy čtyři druhy buněk sestavených k sobě, kdy základním limitem buňky bylo funkční uspořádání typického trojlůžkového pokoje s vlastní bezbariérovou koupelnou. Obdobně jako celou budovu i spojovací krčky tvoří moduly. Ty v úrovni třetího nadzemního podlaží podpírají ocelové sloupy a průvlaky.
Základním předpokladem bezproblémového provozu nemocnice je fungující dispozice. Při jejím návrhu museli autoři vzít v potaz nejen funkční vazby jednotlivých prostor a s nimi spojené hygienické předpisy, ale také estetické a funkční požadavky kladené na interiér uživateli. Modulární řešení nepředstavovalo při projektování žádná omezení, naopak díky kompozici jednotlivých modulů vzniklá jasná a přehledná dispozice zjednodušující orientaci především pacientům.
Vnější vzhled budovy zvolili architekti ve střídmé kombinaci bílé a šedé omítky zvýrazňující okenní otvory. Rastrování fasády reaguje na modularitu celého řešení. Tuto striktní pravidelnost se autoři snažili narušit zdánlivě nahodilým rozmístěním okenních výplní. Praktický a zároveň estetický prvek představují kastlíky předokenních rolet v antracitovém odstínu. Antracitová barva se opakuje rovněž na svislých lamelách obepínajících vnitřní i vnější schodiště na obou koncích budov.
Modulární budoucnost?
Pokud vše proběhne podle plánu, mohlo by nové křídlo Karvinské hornické nemocnice představovat vhodnou inspiraci pro chytrá a bezbolestná řešení navýšení potřebných kapacit nemocnic. „Nedávná epidemiologická situace odhalila i jiný důvod pro postupné navyšování lůžkových kapacit. A sice čím více lůžek budeme mít, tím více jsme jich schopni vyčlenit pro Covid 19 pozitivní pacienty, popřípadě jiné možné infekční hrozby v budoucnosti. Termín předání stavby je listopad 2020 a vzhledem k tomu, že řada lidí očekává druhou vlnu nákazy koronavirem na podzim, je výhoda rychlé modulární výstavby i v tomto kontextu jednoznačná," dodává závěrem Milan Canibal.
- Autoři: Jan Beneš
- Ateliér: petit atelier
- Země: Česká republika
- Město: Karviná
- Datum projektu: 2020
- Užitná plocha: 1 698.00m2
- Zastavěná plocha: 741.00m2