Architektura / rodinné domy

Rekonstrukce oživila prvorepublikovou vilu českého funkcionalisty Karfíka

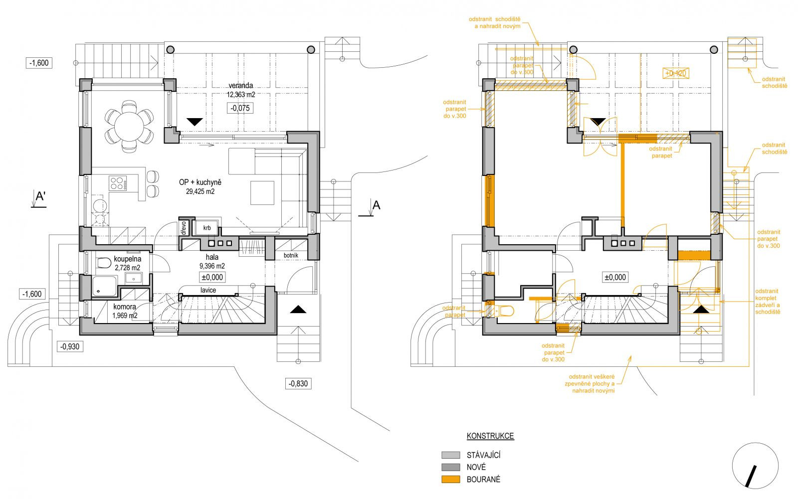
Architekt Adam Rujbr se svou kanceláří zrekonstruoval cenou funkcionalistickou vilu, kterou na konci třicátých let realizoval významný architekt Vladimír Karfík. Nový zásah naplno respektoval historii domu. Došlo ke zvětšení oken a odstranění některých vnitřních příček, aby se zvětšil prostor pokojů.

Adam Rujbr Architects , 23. 3. 2018

  • Ateliér: Adam Rujbr Architects
  • Autoři: Adam Rujbr, Michal Grošup
  • Země: Česká republika
  • Zodpovědný projektant: Jan Kostelka
  • Město: Hradec
  • Datum projektu: 2012
  • Realizace: 2013
  • Užitná plocha: 133.00m<sup>2</sup>
  • Zastavěná plocha: 81.00m<sup>2</sup>
  • Plocha pozemku: 3 290.00m<sup>2</sup>

Klíčová slova:

rekonstrukce funkcionalismus

Mohlo by vás zajímat

Generální partner
Hlavní partneři